施設情報
| 名称 | Auto Mirai 真岡公民館(本館) |
|---|---|
| 所在地 | 〒321-4305 栃木県真岡市荒町1201番地 |
| 電話/FAX | 0285-82-7151/0285-84-8050 |
| 開館時間 | 9:00~21:00 |
| 休館日 | 毎月第3日曜日、12/28~1/4 |
| 構造 |
鉄筋コンクリート造 地上2階建 ・エレベーターあり ・KOBELCO真岡いちごホール(真岡市民会館)と併設 |
| 建築面積 | 640.8㎡ |
| 延床面積 | 1254.8㎡ |
| 建設日 | 昭和49年11月建設 |
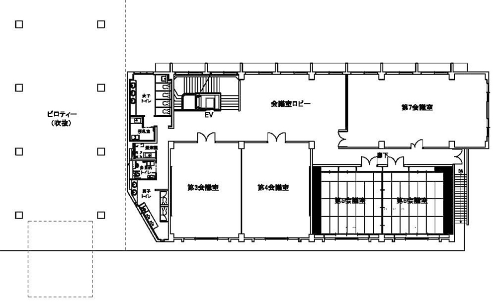
フロアマップ
1階

2階

会議室
-

第一会議室
定員:27名
-

第二会議室
定員:30名
第三・第四会議室
定員:90名
第五・第六会議室
定員:60名、和室
-

第七会議室
定員:60名
調理室
定員:35名










